CO-X Augsburg / Bachelorarbeit

Synergetisches Miteinander des gemeinsamen Arbeitens

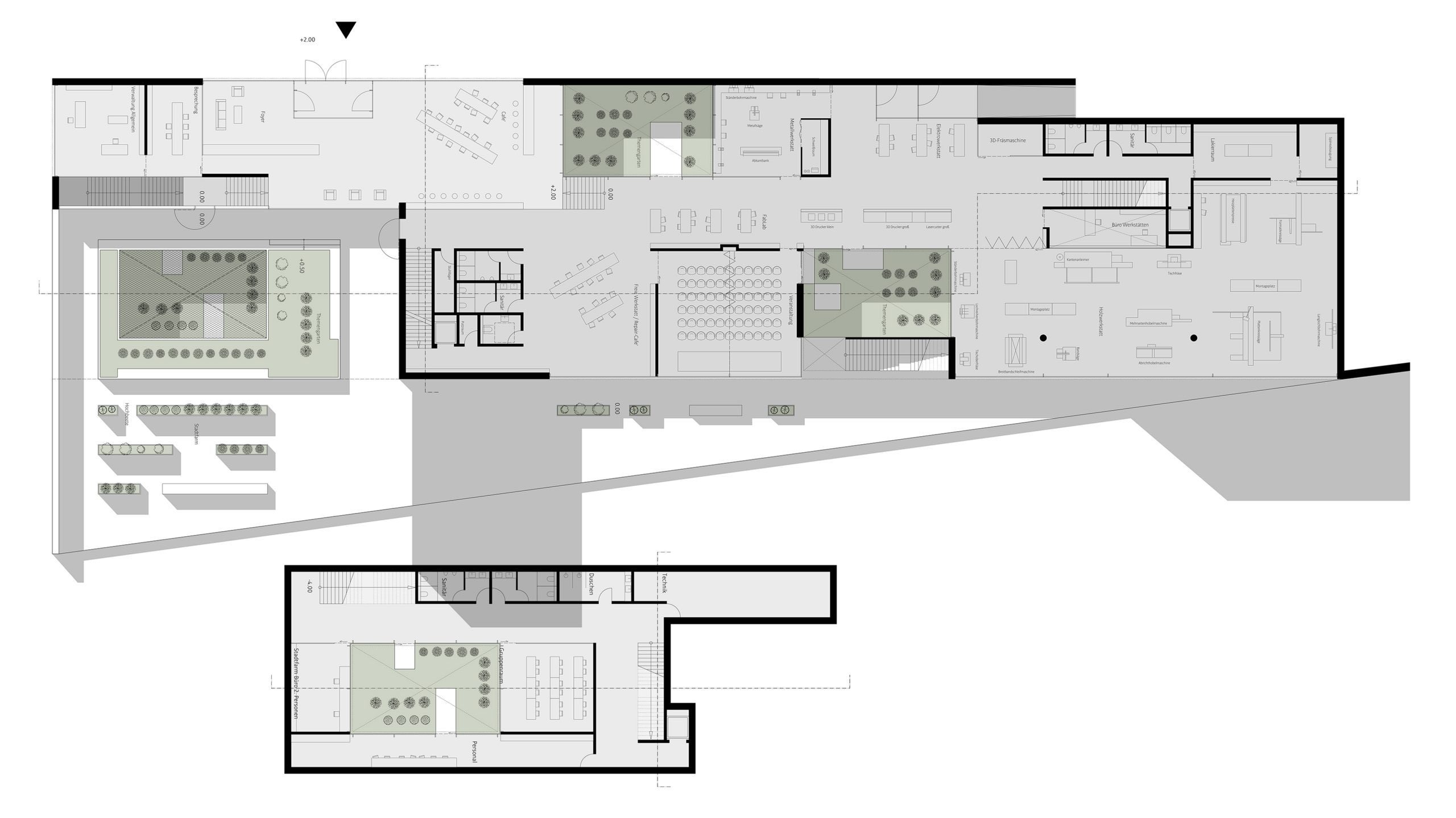
»… CO-X steht für ein Miteinander (Co) unterschiedlichster Art (-X), für eine neue Typologie von Nutzungsmischung, die das Programm des Entwurfs prägt mit dem Ziel, Synergien sichtbar und erlebbar zu machen. Bereiche eher handwerklicher/ technischer Produktion (Offene Werkstätten „Blue Collar“) und Büroarbeitsplätze im Sinn einer Co-Working-Organisation („White Collar“) bilden den Kern, sie werden ergänzt durch einen allgemeinen Bereich und Angebote des Stadt-Farmings.

CO-X Augsburg soll neben einer überzeugenden architektonische und energetische Definition Nutzern als auch Gästen eine besondere Erlebnis-Qualität „des Gemeinsamen“ bieten. Hierzu ist eine besonders hohe Qualität der Erschließungsbereiche unumgänglich. Ebenso zentral ist die Wirkung in den Stadtraum hinein: Wie kann sich die Idee des synergetischen Arbeitens und Miteinanders nach außen präsentieren?“