MFH Nattheim

Bauvoranfrage

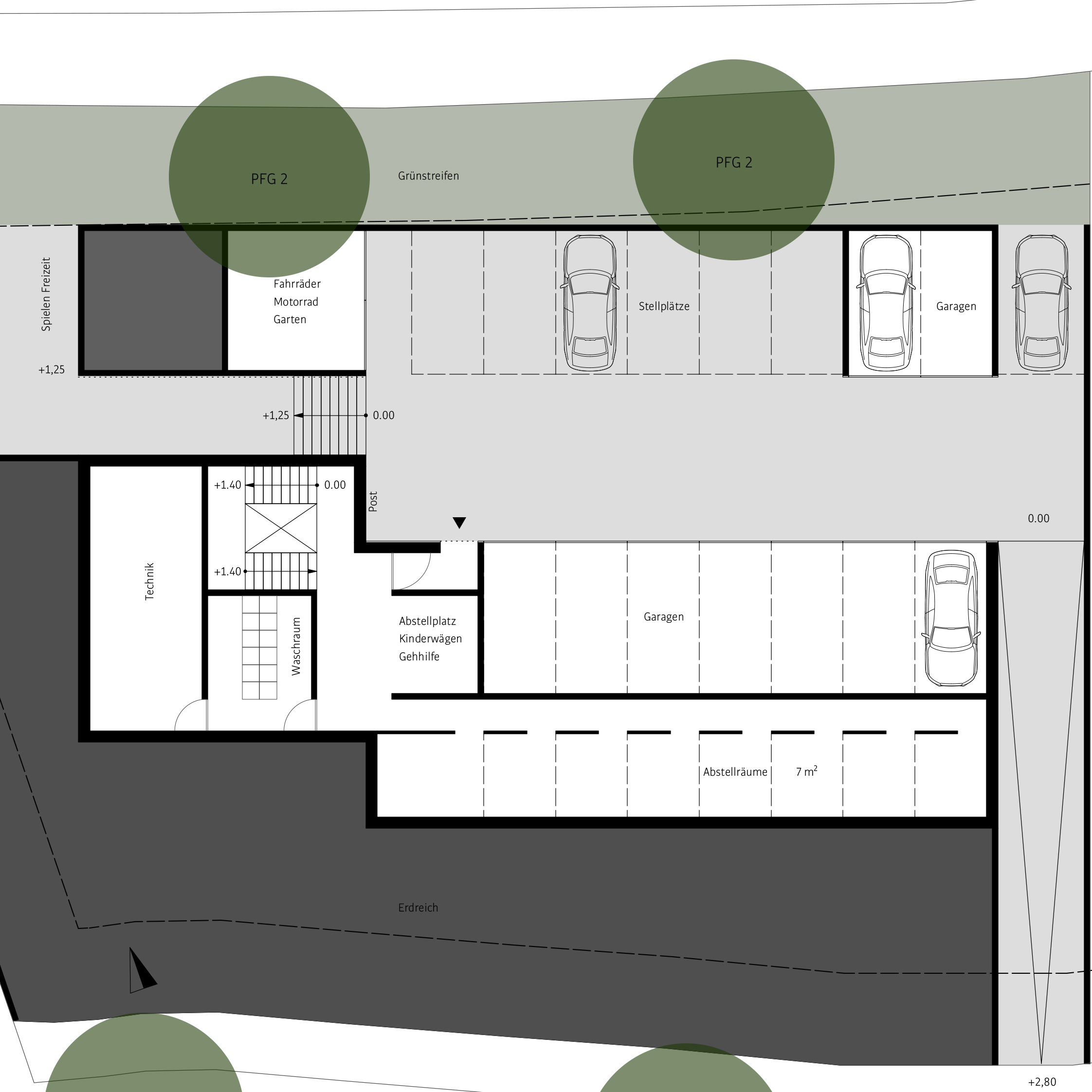
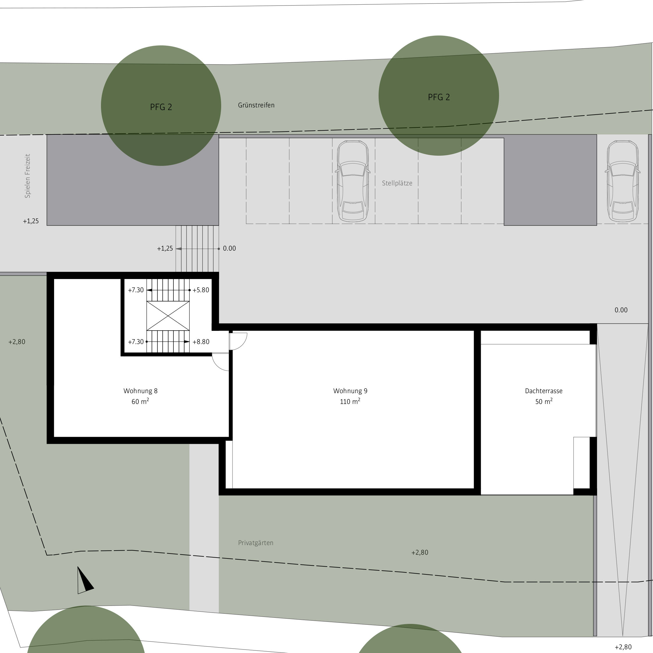
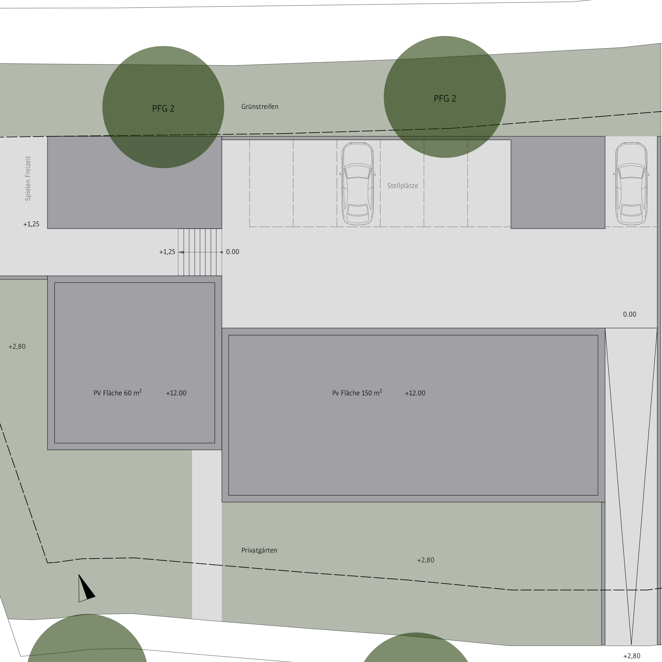
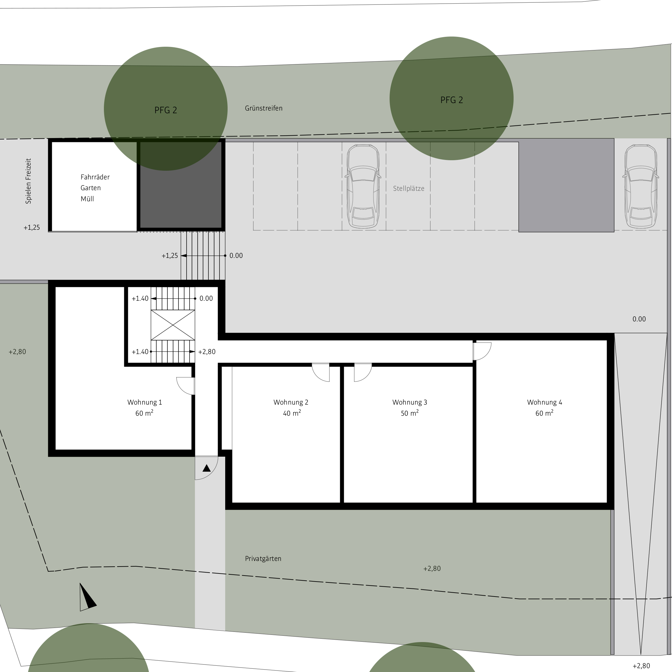
Das Baugrundstück befindet sich im Südosten Nattheims südlich der Flenheimer Straße. Dort soll ein neues Baugebiet entstehen, welches bereits über einen vorläufigen Bebauungsplan verfügt. Der Anschluss der neuen Grundstücke erfolgt über den Muschelweg, sowie den Seesternweg. Der Bebauungsplan unterscheidet in 2 allgemeinen Wohngebieten WA1 und WA2. Das betrachtete Grundstück ist nach erstem Planungsstand 1400m2 groß und liegt im WA1. Es darf mit bis zu 3 Vollgeschossen bebaut werden. Die maximale Gebäudehöhe liegt bei 9m über dem Rohfußboden des Erdgeschosses. Die Grundflächenzahl ist bei 0,4 festgelegt. Die Bauweise ist offen und es gilt das Pflanzgebot 3, welches vorschreibt pro angefangenen 600m² Grundstücksfläche einen  hochstämmigen Laub- oder Obstbaum pflanzen zu müssen. Dabei können Bäume aus der Pflanzgruppe 2, die sich nach dem Bebauungsplan auf dem Grundstück zu befinden haben, mit angesetzt werden. Erschlossen werden muss das Grundstück von Süden in Verlängerung des Muschelwegs.

 

  • Ort

    Nattheim

    Datum

    01 2020

    Auftrag

    Privat

    Mitwirkende

    Sabrina Sommer