Konzept zur Aufwertung des Krankenhauses Wertingen
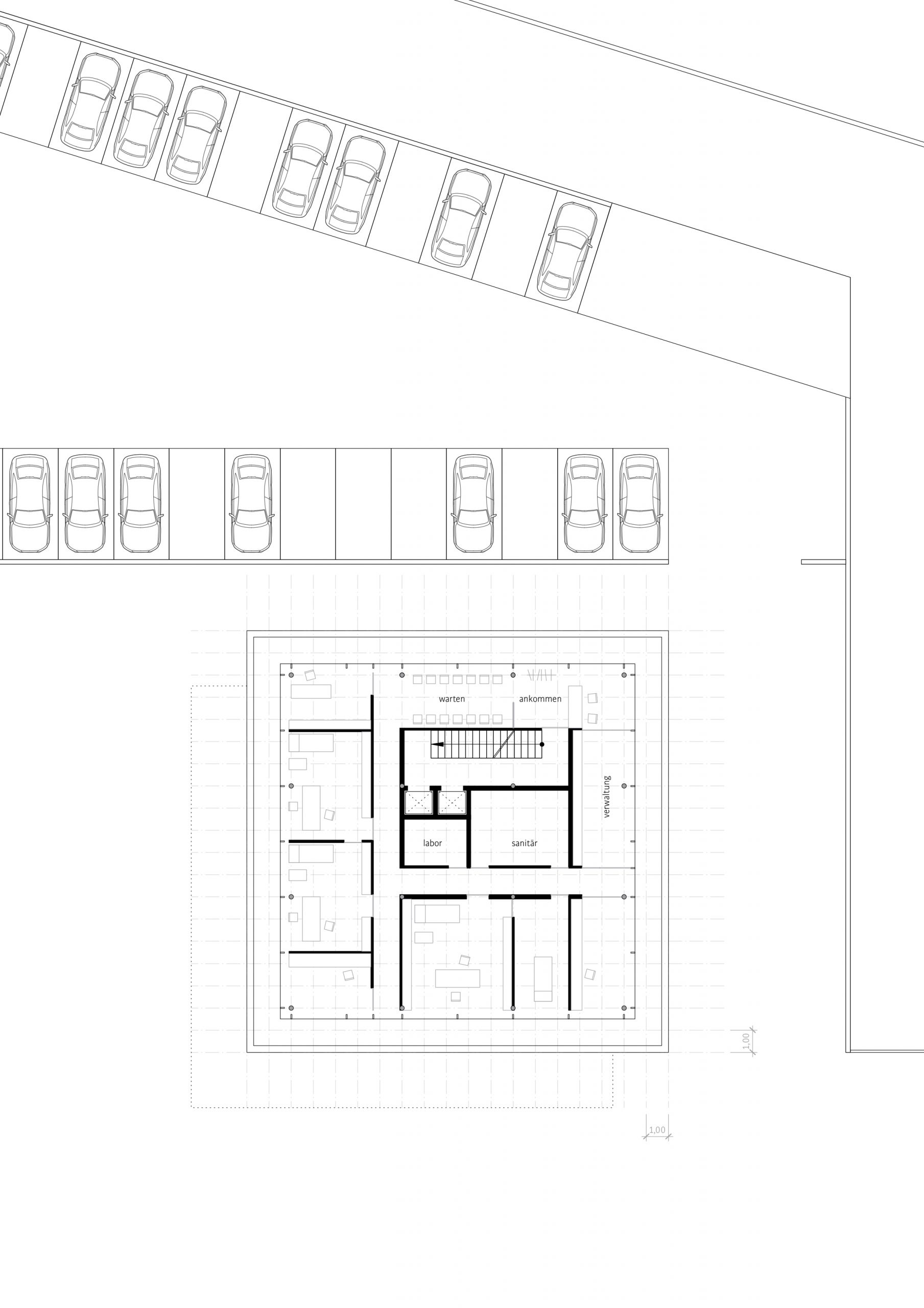
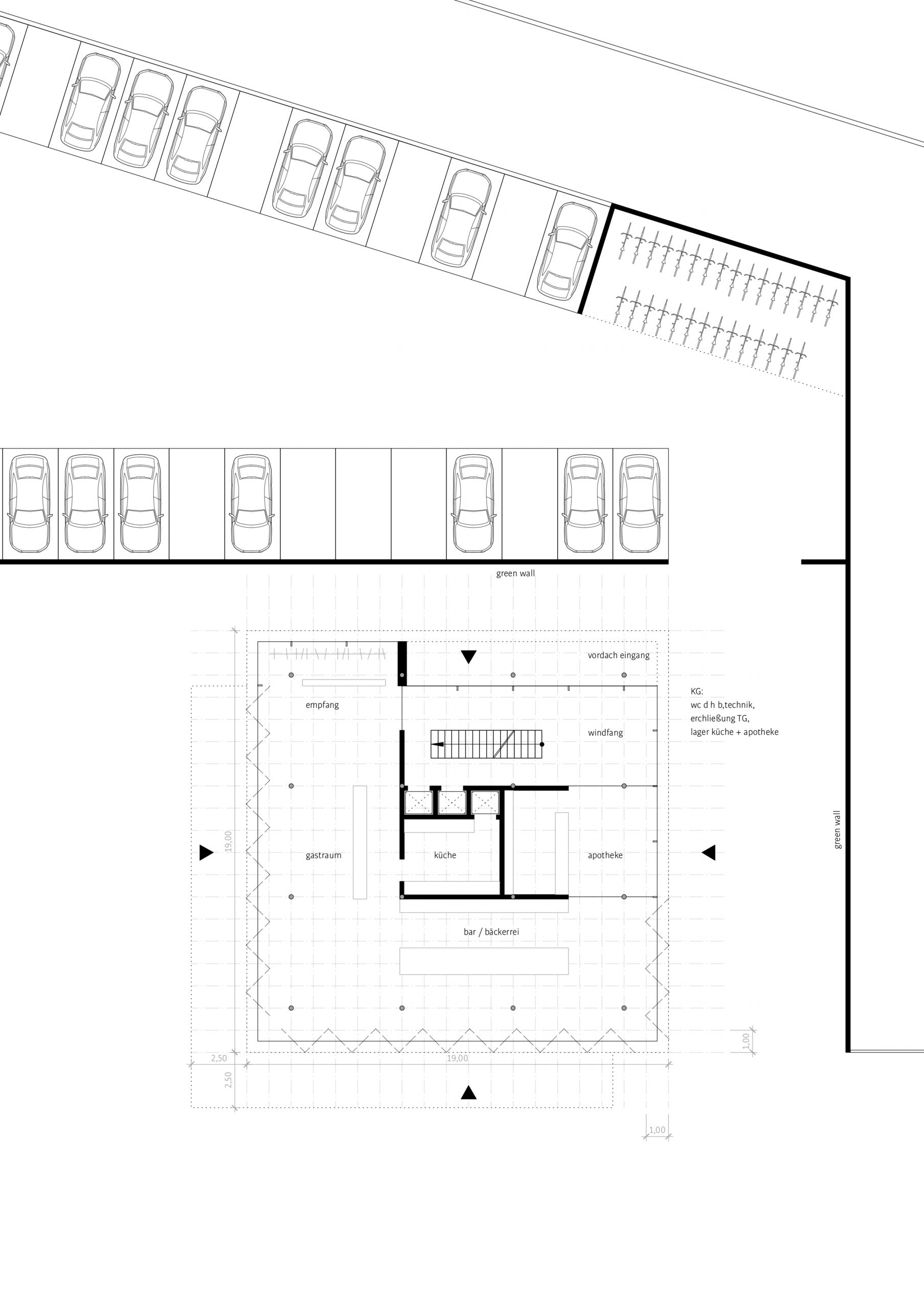
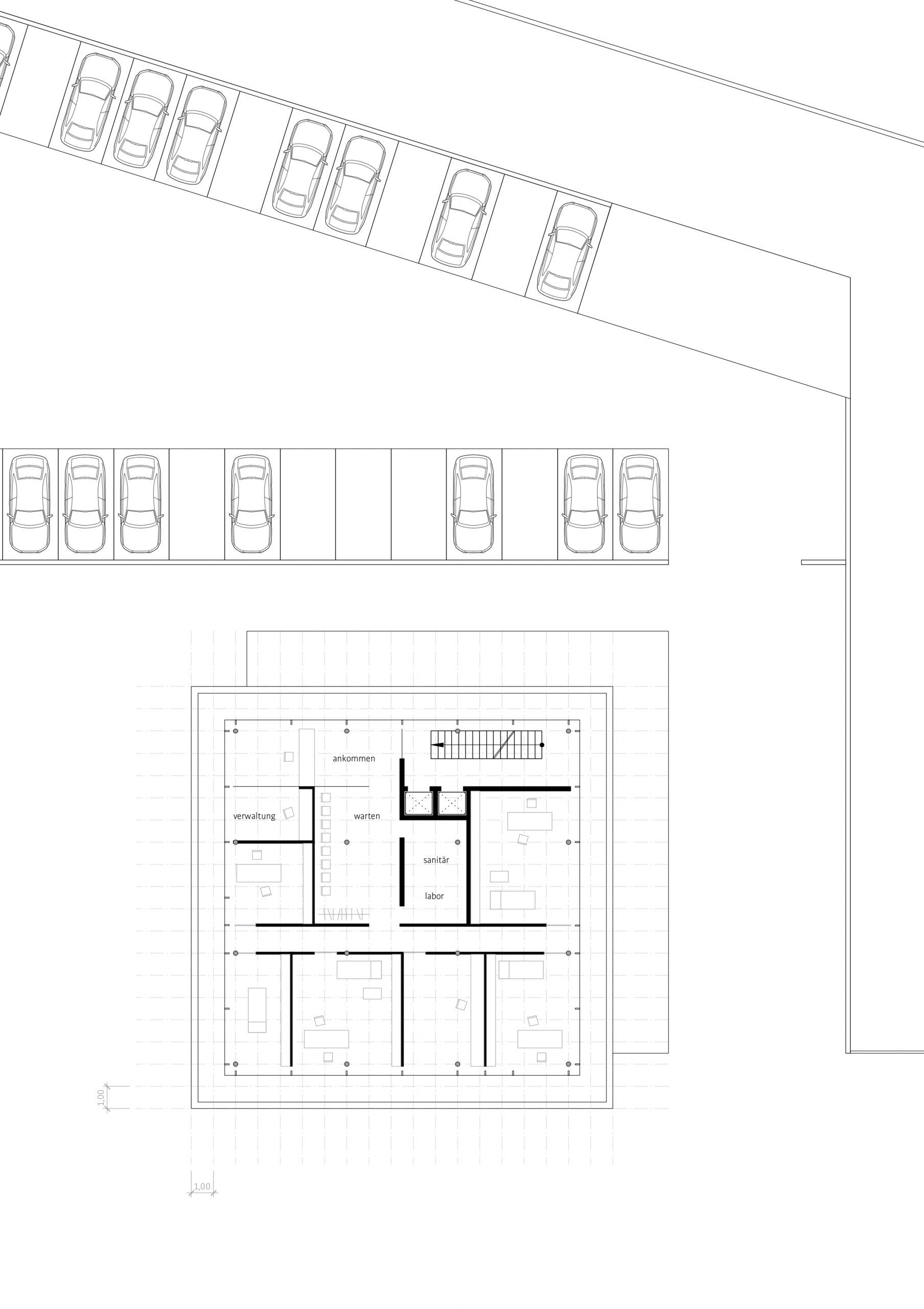
Im Laufe dieses Projekts wurde ein Entwurf für einen „Medizincampus“ ausgearbeitet, mit dessen Hilfe die ärztliche Versorgung im ländlichen Raum Wertingen sichergestellt werden soll.
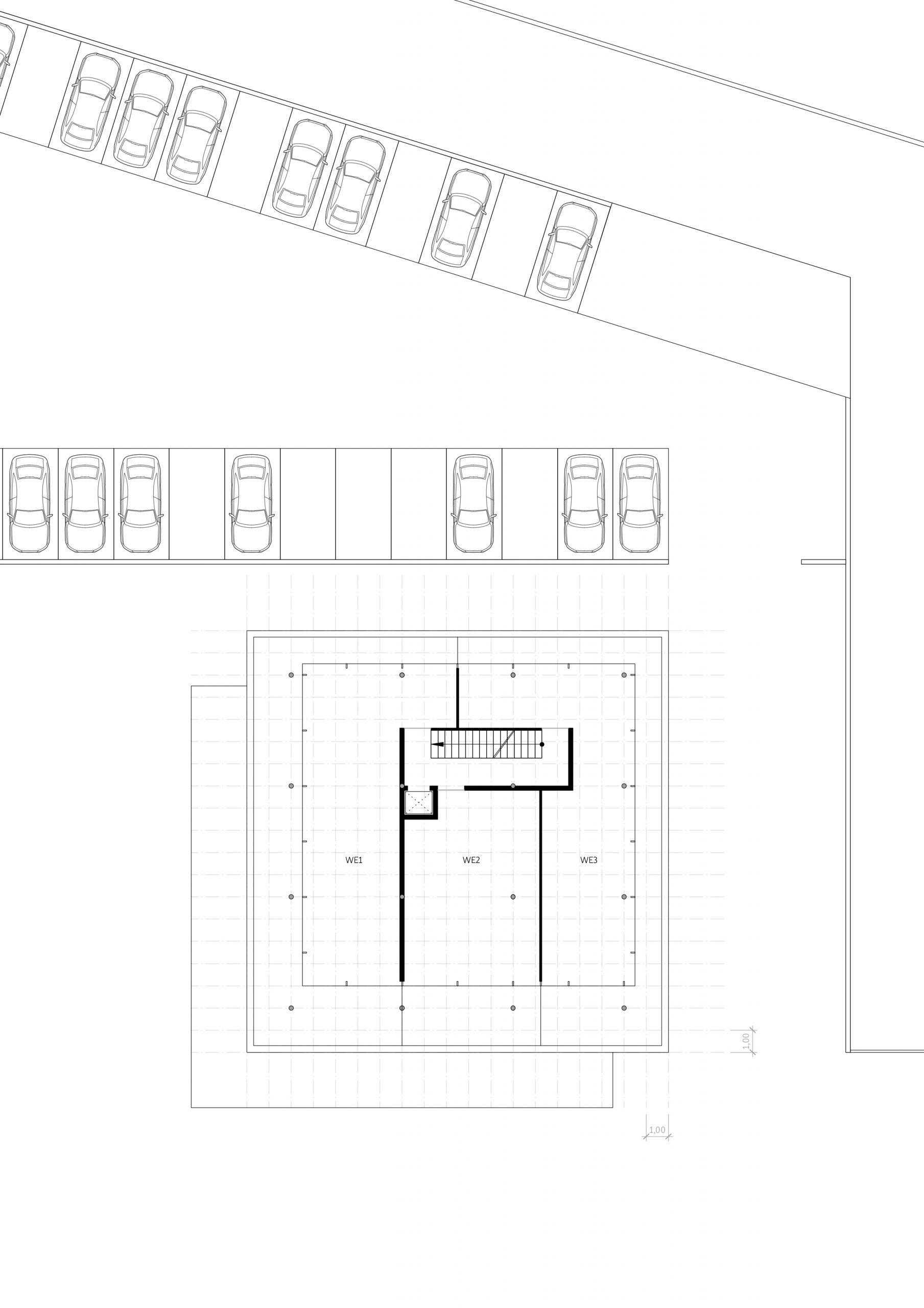
Gemäß dem erarbeiteten Konzept soll das Gebäude nicht nur Räumlichkeiten für Praxen von Haus- und Fachärzten bieten, sondern zudem auch Wohnraum für Schwestern und Pflegeschüler der Wertinger Krankenpflegeschule schaffen. Darüber hinaus wären auch Geschäfte wie eine Bäckerei oder Apotheke im Gebäudekomplex denkbar.
Durch das Projekt können nicht nur Synergieeffekte durch die räumliche Nähe zwischen ambulanter Versorgung im Medizincampus und stationärer Versorgung in der Wertinger Klinik geschaffen werden, sondern es trägt darüber hinaus zu einer generellen Attraktivitätssteigerung des Standorts Wertingen für Ärzte, fachärztliches Personal sowie Patienten bei.