Wohnen am Hang

LPH 1 – 3

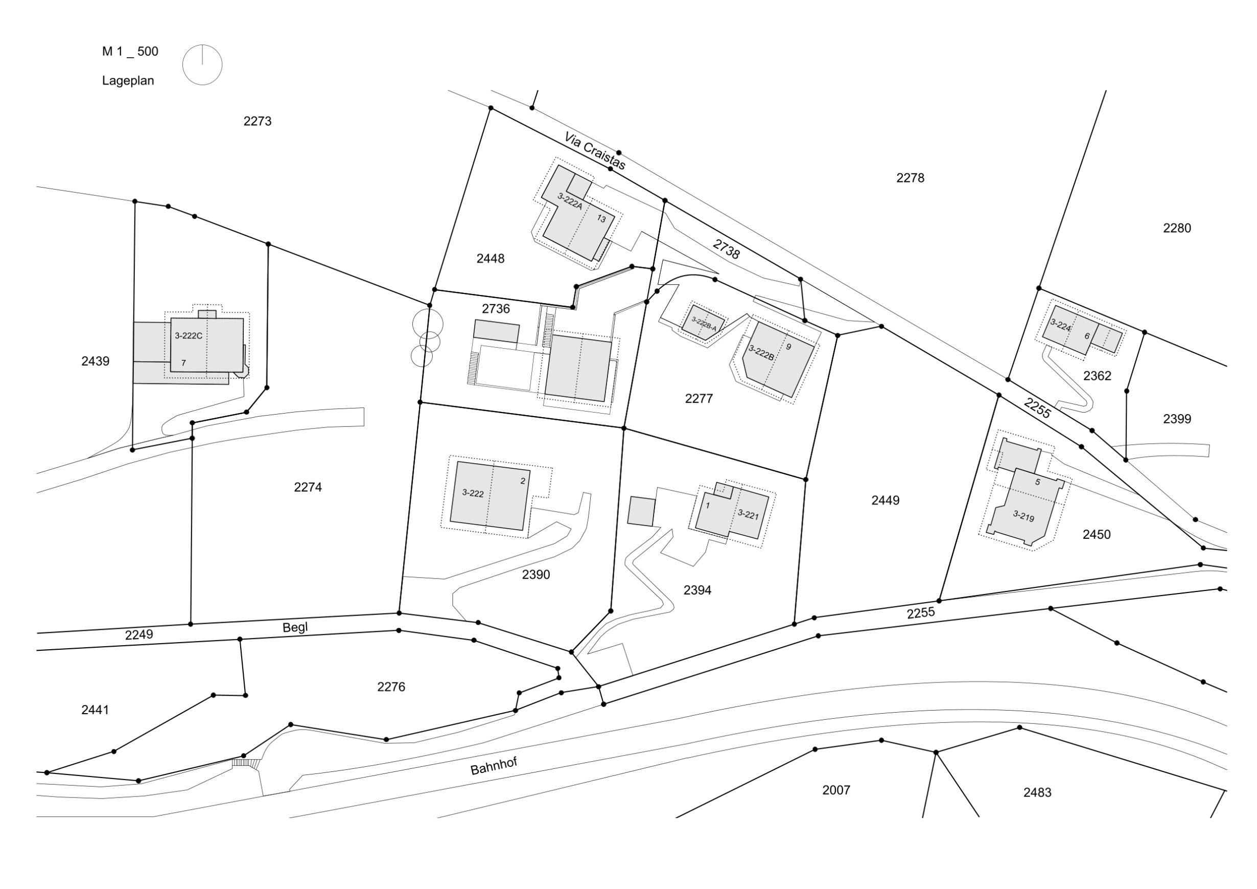
Das Grundstück befindet sich in einer malerischen Berglandschaft im Kanton Graubünden, genauer gesagt im kleinen Dorf Filisur. Es liegt oberhalb des Bahnhofs, eingebettet in die beeindruckende alpine Umgebung, die für die Region typisch ist. Filisur ist bekannt für seine charmanten, traditionellen Häuser und die spektakuläre Natur, die es umgibt. Die Lage des Grundstücks bietet eine ruhige und idyllische Atmosphäre, mit einer beeindruckenden Aussicht auf die umliegenden Berge und das Tal.

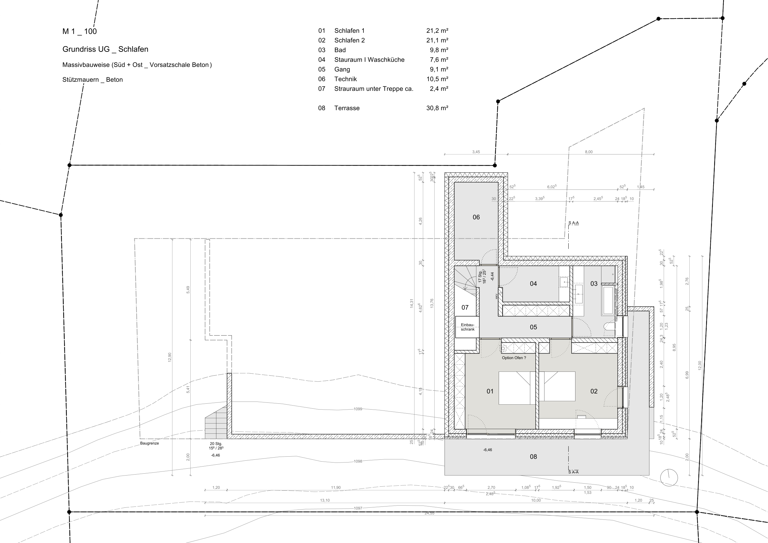
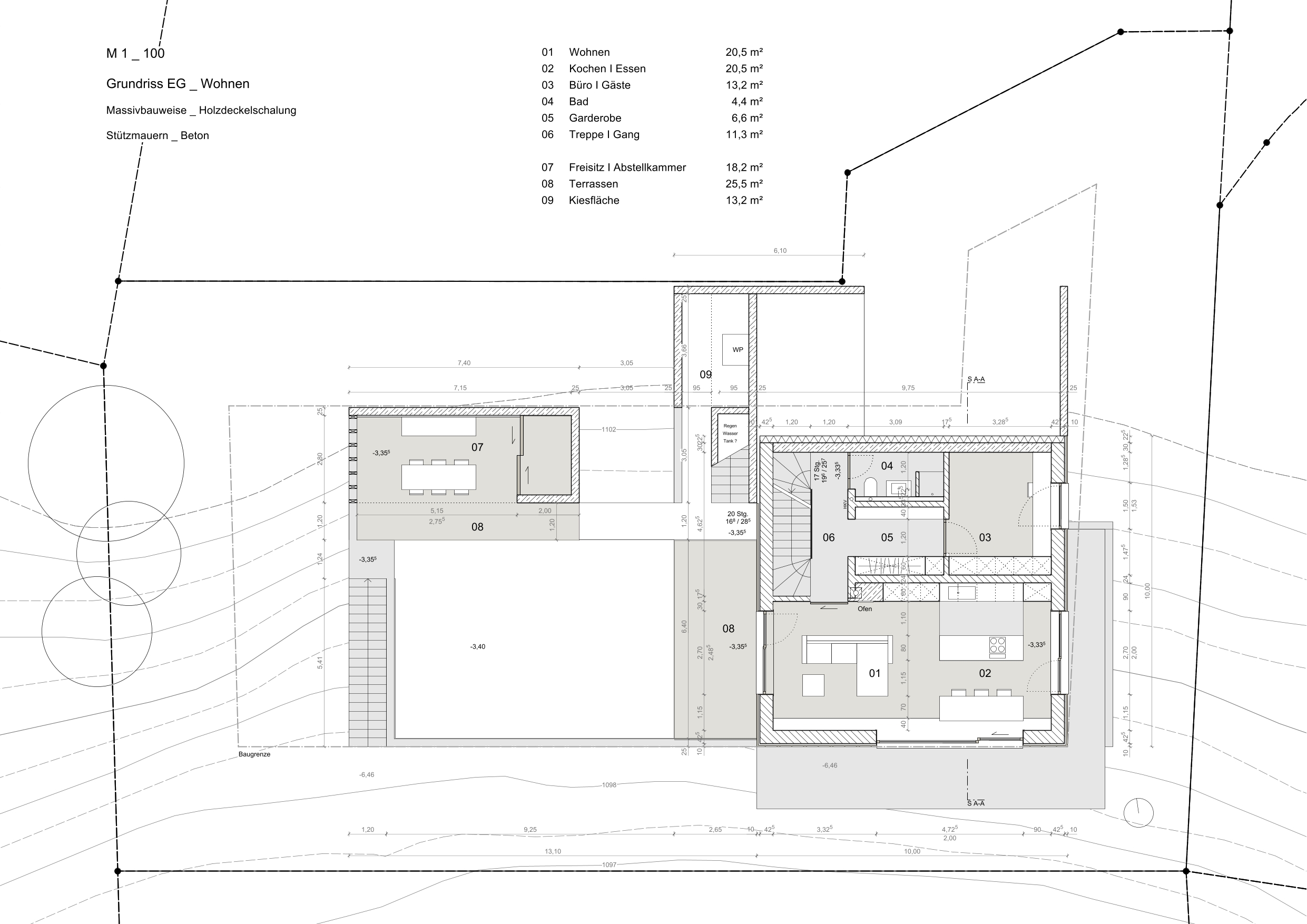
Der Gebäudeentwurf fügt sich harmonisch in die Umgebung ein, indem er die örtlichen Gegebenheiten berücksichtigt und als dreigeschossiges Punkthaus mit Satteldach konzipiert ist. Durch die gewählte Materialsprache aus Holz und grobgeschaltem Beton sowie die Gestaltung mit einer Lochfassade wird eine moderne Interpretation der traditionellen ortsansässigen Bauweise erreicht. Das Satteldach und die Materialwahl reflektieren die alpine Architektur der Region, während der Entwurf gleichzeitig eine zeitgemäße Ergänzung zur bestehenden Struktur des Dorfes darstellt.

 

  • Ort

    Filisur Graubünden Schweiz

    Datum

    2024