Minimalist House / Masterarbeit

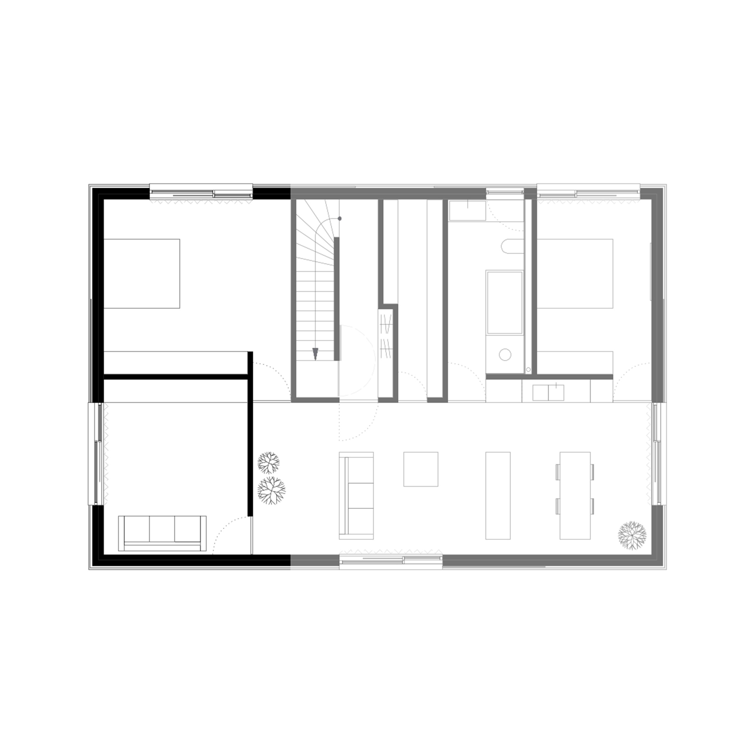
Die Entwicklung eines nachhaltigen Wohnkonzeptes Das Ziel der vorliegenden Masterarbeit war es, ein Konzept für ein Ein-/Mehrfamilienhaus zu entwickeln, welches sowohl auf ökologischer, ökonomischer als auch sozialer Ebene auf Einflussfaktoren und Problemstellungen eingeht, und damit einen ganzheitlichen Lösungsansatz formuliert. Dazu wurden zunächst auf der Basis von einer umfassenden Literatur- und Internetrecherche die Probleme definiert und eigene Ziele gesetzt, auf deren Lösung mit Hilfe von vergleichenden Analysen hingearbeitet wurde. Dabei wurden die einzelnen Bauteile und Ideen unter den genannten drei Aspekten der Nachhaltigkeit untersucht. Zunächst wurde durch eine Studie typischer Bauten im Alpenvorland eine Architektursprache entwickelt, welche sich durch Form und Material sehr gut in die Umgebung einfügt. Auf die Probleme der zunehmenden Altersarmut, der steigenden Mieten und Immobilienpreise, sowie der Flächenversiegelung wurde mit optimierten Grundrissen reagiert, welche durch ihre geringe Fläche auch weniger Kosten verursachen. Damit werden ebenso dem hohen Materialverbrauch und der Ressourcenverschwendung gegengesteuert, was durch die Verwendung von nachhaltigen und natürlichen Materialien weiter eingedämmt werden kann. Diese speichern zudem CO2 und können nach ihrer Lebensdauer wiederverwertet werden. Hohem Kosten – und Wartungsaufwand durch Anlagentechnik wird durch passive Systeme und den geringen Einsatz von Haustechnik entgegengewirkt. Die starren Gebäude und deren fixe Nutzung ermöglichen Umnutzungen nur durch schwerwiegende Eingriffe in die Bausubstanz. Daher wurde ein Konzept entwickelt, welches durch seine Modularität und interne Flexibilität auf verschiedenste Nutzungsszenarien reagieren kann und sich den Anforderungen entsprechend anpassen und erweitern kann. Dadurch werden langlebige Gebäude geschaffen, welche sich durch die Flexibilität und daraus entstehenden Vermietungsszenarien auch leichter finanzieren lassen. Das so entstandene nachhaltige und qualitativ hochwertige Gebäudekonzept lässt sich somit von Jedermann realisieren und passt sich dem Leben des Nutzers an.